Контактная информация
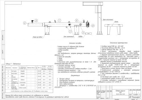
Камеры приема и запуска средств очистки и диагностики (СОД)
Обеспечение бесперебойной и безопасной эксплуатации магистральных трубопроводов — критически важная задача в нефтегазовой отрасли. Ключевым элементом для её решения являются камеры приема и запуска СОД. Это высокотехнологичное оборудование, позволяющее проводить плановое обслуживание, диагностику и очистку труб без остановки транспортировки продукта.
Что такое камеры приема и запуска СОД?
Камеры приема и запуска средств очистки и диагностики (СОД) — это специализированные элементы трубопроводной арматуры, монтируемые в разрыв магистрали. Они предназначены для безопасного введения и последующего извлечения различных внутритрубных устройств (скребков, поршней-разделителей, диагностических дефектоскопов) в работающий трубопровод под давлением. Данное оборудование является обязательным для объектов нефтяной и газовой промышленности, обеспечивая их надежность и экологическую безопасность.
Назначение и ключевые функции камер СОД
-
Запуск очистных и диагностических устройств: Камера запуска служит шлюзом для помещения СОД в поток транспортируемого продукта (нефти, газа, продуктов переработки) без сброса давления и остановки перекачки.
-
Безопасный прием СОД: Камера приема предназначена для фиксации и извлечения устройств после прохождения ими участка трубопровода. Она гарантирует безопасность персонала при выполнении работ.
-
Повышение эффективности трубопровода: Регулярный запуск очистных СОД предотвращает образование парафиновых и смолистых отложений, снижает гидравлическое сопротивление и поддерживает высокую пропускную способность трубы.
-
Мониторинг состояния магистрали: Запуск диагностических приборов позволяет получать точные данные о дефектах, коррозии, износе и геометрии трубопровода, что является основой для планирования ремонтов.
Основные технические характеристики и исполнение
«Регионэнерго» изготавливает камеры приема и запуска, отвечающие самым строгим требованиям проектов.
-
Условный проход (DN): Широкий типоразмерный ряд — от DN 80 до DN 1400.
-
Рабочее давление (PN): Рассчитаны на номинальное давление до 16,0 МПа (160 бар) и выше, в зависимости от параметров технологической линии.
-
Тип затвора (крышки): Предлагаем различные конструкции для оптимального выбора:
-
Хомутовые: Для быстрого и надежного запирания.
-
Байонетные: Быстросъемная конструкция.
-
Резьбовые: Классическое и надежное решение.
-
Качественная антикоррозионная защита
Для обеспечения многолетнего срока службы в агрессивных условиях, по требованию заказчика, мы наносим многослойные защитные покрытия:
-
Внутреннее покрытие: Эпоксидное покрытие на основе ТРЭПП-ТР-90 МА (толщина от 450 мкм), устойчивое к воздействию транспортируемых сред с температурой до +80°С.
-
Наружное покрытие: Прочное антикоррозионное покрытие, стойкое к УФ-излучению и перепадам температур (до +120°С). Состоит из эпоксидного грунта и полиуретанового финишного слоя (толщина от 240 мкм) в цвете по шкале RAL на выбор заказчика.
Каждая поставка включает все необходимое для монтажа и начала эксплуатации:
-
Камера приема/запуска с затвором, комплектом фланцев, крепежа и прокладок.
-
Кран консольный с талью и тяговым механизмом (для камер от DN 350).
-
Лоток для размещения внутритрубных устройств.
-
Поддон для сбора шлама и продуктов очистки.
-
Опорные конструкции, адаптированные под условия монтажа.
-
Багор для запасовки и извлечения СОД.
-
Сигнализатор прохождения СОД (для камеры приема).
-
Устройство заземления.
-
Запорно-регулирующая арматура: манометры, шаровые краны, вентили.
-
Комплект поршней (полиуретановых и поролоновых) для камеры запуска.
Сертификация и сопроводительная документация
Вся продукция производителя «Регионэнерго» является сертифицированной. Мы поставляем оборудование с полным пакетом документов, подтверждающих его качество и соответствие требованиям Технических регламентов Евразийского экономического союза (ЕАЭС):
-
Декларация о соответствии ЕАЭС N RU Д-RU.PA01.В от 01.03.2024 г;
-
Паспорт издели;
-
Сертификаты и паспорта качества на материалы и комплектующие;
-
Акты входного контроля;
-
Акты гидравлических испытаний.
Заказать производство камер приема и запуска СОД
Чтобы рассчитать стоимость и сроки изготовления камеры приема и запуска СОД:
-
Заполните опросный лист и отправьте его на нашу электронную почту.
-
Позвоните нашим инженерам-консультантам для получения предварительной консультации.
342 2700-559
rg159@inbox.ru
г. Пермь, ул. 1905 года, д. 35Н
Производитель: «Регионэнерго»
Обращаясь к нам, вы выбираете надежного партнера, который гарантирует высочайшее качество, полное соответствие проектной документации и своевременные поставки нефтегазового оборудования.
































































